Zum Verbinden von Betonplatten in vorgefertigte Gebäude
Erdbeben-sichere Konstruktion und extreme Wetterereignisse
Es ist allgemein eine Vielzahl von Ausführungsformen von vorgefertigten modularen Aufbau bekannt.

Diese Art der Konstruktion wird bereits sowohl den Bau von Wohnanlagen, wie Stadt-und Mehrfamilienhäuser, wie in Konstruktionen für allgemeine Dienste bestimmt sind, wie zum Beispiel in Schulen, Büros und Gebäude, die weit verbreitet Industrielle unter vielen anderen.
Im Wesentlichen ist diese Art der Modulbauweise auf orthogonalen Kupplungsplatte basiert auf Betonwänden, Fußböden, Decken, etc. definieren Stahlbetonplatten im wesentlichen eine rechteckige Form und sind mit einem Verbundes verstärkt durch zwei Systeme in der Regel Stahl Stäbe parallel zueinander angeordnet Zusätzlich wird jeder Stahlbetonplatte mit einem Ring mit einem U-Stahlprofil vorgesehen wer erhält Perimeter.

In Ausführungsformen von Gebäuden aus Fertigteilen, wurden die Verbindung zwischen Betonplatten für die Realisierung der Konstrukte, die durch Schweißen, das die Struktur so ausgebildet bemerkenswerte Einschränkungen bei der Positionierung Platten angefertigt.
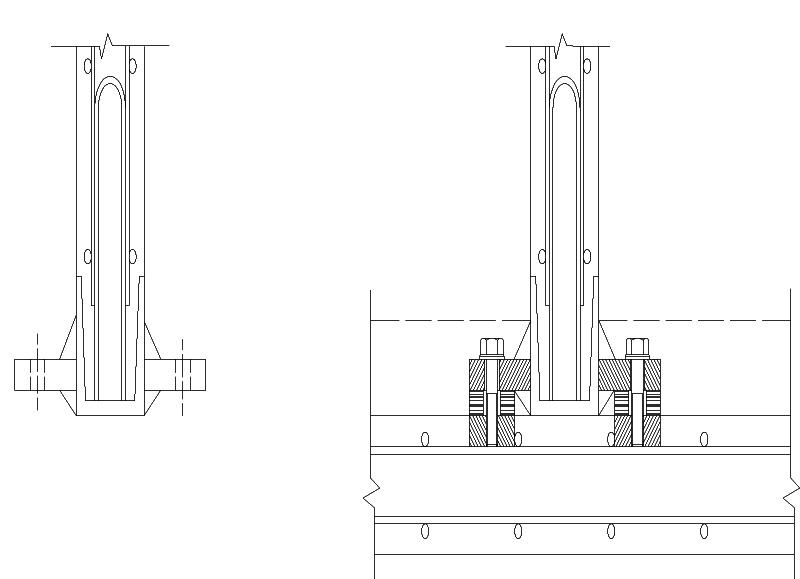
In dem System der Vereinigung GEOLIFE Stahlbetonplatten, wird eine Platte mit einer oder mehreren Platten enthalten und in der Betonmasse senkrecht zu den Zaun befestigt ist..
Alle so dass die Platten entgegengesetzt zu entsprechenden Platten in der Betonmasse enthalten und an einem Gestänge von einer zweiten Platte senkrecht zu der ersten angeordnet sind ausgebildet.
Alle so dass die Platten entgegengesetzt zu entsprechenden Platten in der Betonmasse enthalten und an einem Gestänge von einer zweiten Platte senkrecht zu der ersten angeordnet sind ausgebildet.
Die Befestigungsmittel zwischen die beiden Platten durch Schrauben gehalten werden. fügen Sie ein Element mit elastischen Eigenschaften zwischen zwei gegenüberliegenden Platten angeordnet..
Vergleichende Beschreibung der das Gerät mit dem UNION Bauplatte P200801099, mit anderen Systemen zur UNION nun auf dem Markt..

In der Darstellung wir beobachteten zwei Bauplatten, von denen vertikale, in dem Satz von Konstruktion kann eine Gehäusewand oder eine Trennwand und eine zweite Platte in einer horizontalen Position in das gesamte Gebäude sein ein Boden, Decke, Fußboden oder auch nicht.
Die gestrichelte Linie stellt die Ziellinie eines Gitters, einer schwimmenden Fußboden, abgehängte Decke, oder Belüftungsschlauch, welche die Hardware-Geräte in Bauplatte gemeinsamen Tapas beschreibbare versteckt, um künftige Inspektionen zu erleichtern.

Die Befestigung und Festziehen der Schrauben wird durch einen kalibrierten Drehmomentschlüssel auf eine Stärke angebracht, die strukturellen Belastungen des Gebäudes gemacht werden, wie das elastomere Element zwischen den einander zugewandten Platten Befestigungsbeschlag ist aus einem geeigneten Material auf diese Kosten können beispielsweise konkav geformten Stahlblech (mehrere Ringe), oder eine Zink-Ring mit entsprechender Dicke, so dass die Kompression noch unterstützt die strukturellen Belastungen, so dass eine gewisse Elastizität.

Sobald die Verbindung von Bauplatten, werden die Schrauben mit einer Dichtung ausgestattet, um sowohl die nicht-Manipulation zu gewährleisten abgedichtet, wie die leichte Überprüfung der Bestechlichkeit Drehmoment. Also, dass der Architekt optional Zertifizierung kann nicht beeinträchtigt werden.

Die Duktilität an der Kreuzung der Bauplatten von diesem System aus der aktuellen Konstruktion angeboten, wie Löten und es scheint klar, von Anfang an der Ansiedlung des Gebäudes Vermeidung der störenden typischen Risse in Plattenbauten.

Das Gebäude mit diesem Bausystem errichtet wird immer eine rekonfigurierbare Gebäude sein ohne zu zerstören, einen beliebigen Teil, ersetzen Sie einfach tragenden Wänden und führen kleinere Ausbauarbeiten im Inneren.

Die Elastizität der Befestigung von Bauplatten P20081099, der auch eine ausgezeichnete Dispersion von Lasten, geben dem Gebäude eine ausgezeichnete Beständigkeit gegen Unfälle und Naturkatastrophen wie Erdbeben, Wirbelstürme usw. ...


Francisco López