نظام للانضمام الى كتل الخرسانة في المباني الجاهزة
زلزال آمن البناء والطقس المتطرفة
ومن المعروف على نطاق واسع طائفة واسعة من المجسدات من تصميم وحدات سابقة التجهيز.

هذا النوع من البناء هو بالفعل على نطاق واسع في البناء على حد سواء من المجمعات السكنية، مثل منازل ومبان سكنية، كما هو الحال في المنشآت المخصصة للخدمات العامة، كما هو الحال في المدارس والمكاتب والمباني المستخدمة الصناعية من بين أمور أخرى كثيرة.
أساسا، ويستند هذا النوع من وحدات البناء على لوحة توصيل متعامد لتحديد الجدران الخرسانية والأرضيات والسقوف، الخ. لوحات الخرسانة المسلحة لديها في الأساس شكل مستطيل، ويتم توفيرها مع مركب تعززه واحدة ونظامان قضبان الفولاذ عادة مرتبة موازية لبعضها بالإضافة إلى ذلك، وتقدم كل لوحة الخرسانة المسلحة مع عصابة تتكون من الفولاذ U الشخصي الذي يحصل على محيط.
في التضمين من المباني الجاهزة، أدلى المشتركة بين كتل الخرسانة لتحقيق بنيات بواسطة لحام، والتي تعطي هيكل شكلت القيود الملحوظة في لوحات لتحديد المواقع. في نظام GEOLIFE الاتحاد عزز لوحات ملموسة، وتقدم لوحة واحدة مع واحدة أو أكثر لوحات وشملت إصلاح في عمودي كتلة ملموسة من السياج. جميع تكييفها بحيث لوحات هي عكس لوحات المناظر المدرجة في كتلة ملموسة وثابتة لنظام قضيب من لوحة 2 مرتبة عموديا للأول.
جميع تكييفها بحيث لوحات هي عكس لوحات المناظر المدرجة في كتلة ملموسة وثابتة لنظام قضيب من لوحة 2 مرتبة عموديا للأول
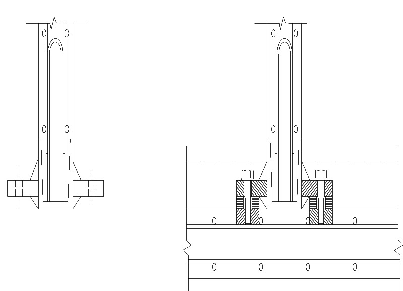
المرفق يعني تقام بين اثنين من لوحات بواسطة البراغي. إضافة عنصر مع خصائص المرونة التخلص منها بين لوحين معارضة. مقارن وصف الجهاز باستخدام لوحة UNION بنائية P200801099، مع النظم الأخرى المستخدمة للاتحاد الآن على السوق. في الرسم التوضيحي لاحظنا فريقين الهيكلية، واحد منهم العمودي، في مجموعة من البناء قد يكون هناك سور أو جدار التقسيم، والفريق الثاني في وضع أفقي في المبنى كله أرضية، سقف، أو الكلمة سواء.
الخط المنقط يمثل خط النهاية من شعرية، الكلمة العائمة، والسقف المعلق، أو أنبوب التهوية، والذي يخفي الأجهزة في الهيكلية للتسجيل لوحة تاباس مشتركة لتسهيل عمليات التفتيش المقبلة.

وسوف تتاح للإصلاح وتشديد الخناق من قبل وجع عزم الدوران معايرة لقوة مناسبة للأحمال الهيكلية للمبنى، كما أن عنصر المرنة بين مواجهة لوحات من التعلق يجب أن تكون من مادة مناسبة لهذه الاتهامات، على سبيل المثال مقعر على شكل الصلب المضغوط (حلقات عديدة)، أو حلقة من الزنك سمك هذه المناسبة أن ضغط من دعم لا يزال يحمل الهيكلية، والسماح لمرونة معينة.

مرة واحدة في اتصال من لوحات الهيكلي، ويتم اغلاق مسامير مع نظام لضمان ختم على حد سواء وعدم التلاعب، كما من السهل التحقق من القابلية للفساد من عزم الدوران. ويمكن لذلك أن ليس على شهادة مهندس معماري اختياري يجوز المساس بها.

ليونة في الملتقى من لوحات الهيكلي التي يقدمها هذا النظام من البناء الحالي، مثل لحام، ويبدو واضحا من البداية للتسوية من المبنى وتجنب الشقوق مزعج نموذجي في المباني الجاهزة.

المبنى شيد مع بناء هذا النظام سوف يكون دائما وبناء إعادة التشكيل دون هدم أي جزء، مجرد استبدال الجدران الهيكلية وتنفيذ التعديلات عمل بعد الانتهاء من داخل.

فإن مرونة من المرفق لوحات الهيكلي P20081099، الذي هو أيضا تشتت ممتازة من الأحمال، وإعطاء بناء مقاومة ممتازة للحوادث والكوارث الطبيعية مثل الزلازل والأعاصير، الخ ...

Francisco López