Sistema per la unió de plaques de formigó armat en construccions prefabricades
Construcció segura antisismica i climatologia extrema
És àmpliament coneguda una extensa varietat de realitzacions de construccions prefabricades de disseny modular.

Aquest tipus de construcció es troba ja molt estesa tant en l'àmbit de construcció de conjunts residencials, com ara residències unifamiliars i blocs d'habitatges, com en construccions destinades a serveis de caràcter general, com per exemple en centres educatius, oficines i edificis d'ús industrial entre molts altre.
Essencialment, aquest tipus de construcció modular es basa en l'acoblament ortogonal de plaques de formigó armat per definir tancaments, forjats, sostres, etc. Les plaques de formigó armat tenen essencialment un format rectangular i estan proveïdes d'un armat compost generalment per dos sistemes de barres d'acer disposats paral · lels entre si, a més, cada placa de formigó armat està proveïda d'un setge que comprèn un perfil d'acer en U que la rep perimetralment

En les realitzacions de construccions prefabricades, la unió entre plaques de formigó armat per a la realització de construccions es realitza mitjançant soldadura elèctrica, la qual cosa confereix a l'estructura formada notables limitacions quant a posicionament de plaques..
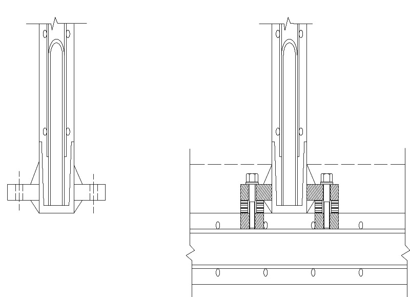
En el sistema GEOLIFE d'unió de plaques de formigó armat, una placa està proveïda d'una o més platines incloses i fixades en la massa de formigó perpendicularment al setge.
Tot això adaptat de manera que les platines queden enfrontades a corresponents platines incloses en la massa de formigó i fixades a un sistema de barres d'una segona placa disposada perpendicularment respecte de la primera.
Tot això adaptat de manera que les platines queden enfrontades a corresponents platines incloses en la massa de formigó i fixades a un sistema de barres d'una segona placa disposada perpendicularment respecte de la primera
Els mitjans d'unió entre les dues platines es realitzen mitjançant cargols. añadiendo además un elemento con propiedades elásticas dispuesto entre dos pletinas enfrentadas. afegint a més un element amb propietats elàstiques disposa entre dues platines enfrontades..DESCRIPCIÓ COMPARATIVA DE LA UTILITZACIÓ DEL DISPOSITIU D'UNIÓ DE PANELLS ESTRUCTURALS P200801099, DAVANT ALTRES SISTEMES D'UNIÓ UTILITZATS FINS ARA EN EL MERCAT.
En la il · lustració observem dos panells estructurals, un en posició vertical, que en el conjunt de l'edificació podrà ser una paret de tancament, o una paret divisòria, i un altre segon panell en posició horitzontal, que en el conjunt de l'edificació serà un forjat, de sostre, o de sòl indistintament.
La línia de punts representarà la línia d'acabat d'una gelosia, sòl flotant, fals sostre, cambra d'aire o ventilació, que ocultarà els cargols dels dispositius d'unió de panells estructurals sota unes tapes registrables que facilitin futures inspeccions.

La fixació i collament dels cargols es realitzarà mitjançant una clau dinamomètrica tarada a una força apropiada a les càrregues estructurals de l'edifici, d'igual manera l'element elastòmer entre les platines enfrontades del dispositiu d'unió serà d'un material adequat a aquestes càrregues, per exemple acer premsat en forma còncava (diversos anells), o un anell de zinc de gruix adequat de tal manera que encara suportant la compressió de les càrregues estructurals, permeti una certa elasticitat.


Un cop realitzada la connexió dels panells estructurals, els cargols es precintaran amb un sistema de precintes que garanteixin tant la no manipulació, com la fàcil comprovació de la corruptibilitat del parell d'ajust. De tal manera que la certificació de l'arquitecte facultatiu no pugui veure compromesa.

La ductilitat en la unió dels panells estructurals que ofereix aquest sistema constructiu enfront dels actuals, com la soladura sembla evident ja des del mateix principi de l'assentament de l'edifici evitant les molestes esquerdes típiques en els edificis prefabricats.

L'edifici construït amb aquest sistema constructiu, sempre serà un edifici reconfigurable, sense necessitat de demolir cap de les seves parts, només cal substituir les seves parets estructurals i realitzar obres menors d'acabats al seu interior.

L'elasticitat del dispositiu d'unió de panells estructurals P20081099, que a més és un excel · lent dispersor de càrregues, conferirà a l'edifici una excel · lent resistència als accidents i desastres naturals, com ara sismes, huracans, etc ...


Francisco López