Système pour l'assemblage des dalles de béton dans les bâtiments préfabriqués
Tremblement de terre de sécurité de construction et des conditions météorologiques extrêmes
Il est largement connu une grande variété de modes de réalisation de la conception modulaire préfabriquée.

Ce type de construction est déjà largement répandue à la fois dans la construction de complexes résidentiels, tels que maisons de ville et immeubles, comme dans les constructions destinées à des services généraux, tels que dans les écoles, les bureaux et les bâtiments utilisés industriel parmi beaucoup d'autres
Essentiellement, ce type de construction modulaire est basé sur la plaque de couplage orthogonal à définir des murs en béton, planchers, plafonds, etc Plaques en béton armé ont essentiellement une forme rectangulaire et sont pourvus d'un composite renforcé par des tiges d'acier deux systèmes habituellement disposées parallèlement les unes aux outre, chaque plaque en béton armé est pourvu d'une bague comprenant un profil en U en acier qui reçoit périmètre.

Dans des modes de réalisation de bâtiments préfabriqués, l'articulation entre les dalles de béton pour la réalisation de constructions ont été faites par soudage, ce qui donne la structure formée des limitations notables dans des plaques de positionnement.
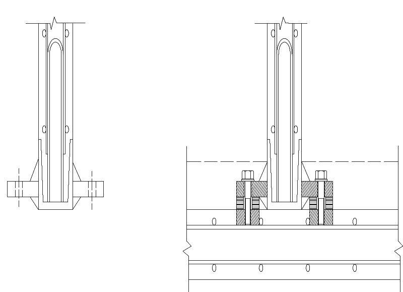
Dans le système de caisse GEOLIFE plaques de béton renforcé, une plaque est munie d'une ou plusieurs plaques inclus et fixée dans la masse de béton perpendiculaire à la clôture.
Tous adaptés de telle sorte que les plaques sont opposées l'une des plaques correspondantes incluses dans la masse de béton et fixé à une tringlerie d'une seconde plaque disposée perpendiculairement à la première..
Tous adaptés de telle sorte que les plaques sont opposées l'une des plaques correspondantes incluses dans la masse de béton et fixé à une tringlerie d'une seconde plaque disposée perpendiculairement à la première.
Le moyen de fixation entre les deux plaques sont maintenues par des vis. añadiendo además un elemento con propiedades elásticas dispuesto entre dos pletinas enfrentadas. ajouter un article ayant des propriétés élastiques disposés entre deux plaques opposées.
DESCRIPTION COMPARATIVE DU DISPOSITIF UTILISANT LE PANNEAU structurels de l'Union P200801099, AVEC D'AUTRES SYSTEMES UTILISES POUR L'UNION Maintenant sur ​​le marché.
Dans l'illustration, nous avons observé deux panneaux structuraux, l'un d'entre eux verticaux, dans l'ensemble de la construction peut être un mur d'enceinte ou une cloison, et un deuxième panneau dans une position horizontale dans l'ensemble du bâtiment est un plancher, un plafond ou au sol soit
La ligne pointillée représente la ligne d'arrivée d'un treillis, un plancher flottant, plafond suspendu, ou un tube de ventilation, qui cache les périphériques dans le panneau de commune enregistrable structurelle tapas pour faciliter les inspections futures.

La fixation et le serrage des vis sera effectué par une clé dynamométrique étalonnée à une résistance appropriée aux charges de structure du bâtiment, tout comme l'élément en élastomère entre les plaques de fixation en face doit être d'un matériau approprié à ces accusations, par exemple concave en forme de tôle d'acier emboutie (plusieurs anneaux), ou un noyau de zinc d'une épaisseur appropriée de telle sorte que la compression des encore de support des charges de structure, permettant une certaine élasticité.

Une fois la connexion des panneaux structuraux, les vis sont scellés avec un système d'étanchéité à garantir à la fois la non-manipulation, comme la vérification facile de la corruptibilité du couple. Alors que la certification architecte option ne peut être compromise

La ductilité à la jonction de panneaux structuraux offerts par ce système de la construction en cours, telles que la soudure et il semble clair dès le début de la colonie du bâtiment en évitant les fissures typique et fastidieux dans des bâtiments préfabriqués

Le bâtiment construit avec ce système de construction sera toujours un bâtiment reconfigurable sans démolir une partie, il suffit de remplacer les murs structurels et d'effectuer les travaux de finition mineurs à l'intérieur.

L'élasticité de la fixation de panneaux structuraux P20081099, qui est aussi une excellente dispersion de charges, donnera au bâtiment une excellente résistance aux accidents et aux catastrophes naturelles telles que tremblements de terre, ouragans, etc ...


Francisco López