מערכת להצטרפות לוחות בטון במבנים טרומיים
רעידות אדמה בטוח בנייה מזג אוויר קיצוני
זה ידוע מגוון רחב של התגלמות של עיצוב מודולרי טרומיים.
סוג זה של בנייה כבר נפוצה בבניית שני מתחמי מגורים, כגון בתי העיר ואת בנייני מגורים המיועדים כמו דירות שירותים כלליים, כגון בתי ספר, משרדים ומבנים המשמשים תעשייתי בין רבים אחרים.
בעיקרו של דבר, סוג זה של בנייה מודולרית מבוססת על הצלחת הזיווג אורתוגונליים להגדיר קירות בטון, רצפות, תקרות וכו ' לוחות בטון מזוין יש בעצם צורה מלבנית מסופקים עם שילוב חיזוק שתי מערכות בדרך כלל מוטות פלדה המסודרים במקביל בנוסף לכל, כל צלחת בטון מזוין מסופק עם טבעת הכולל פרופיל פלדה U המקבל המערכת..

ב התגלמות של מבנים טרומיים, משותפת בין לוחות בטון עבור מימוש מבנים נעשו על ידי ריתוך, המקנה למבנה נוצר מגבלות הבולטים בלוחות מיקום.
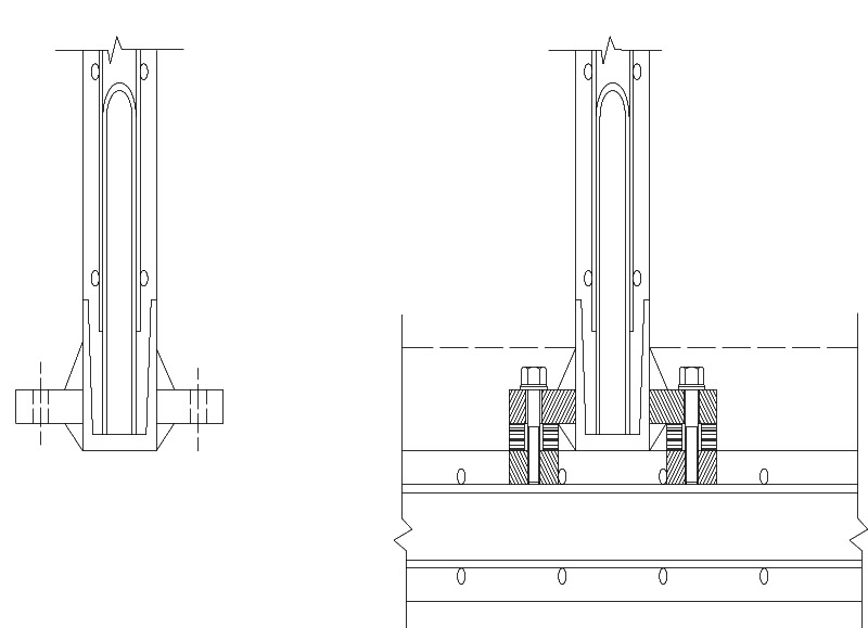
במערכת של האיחוד GEOLIFE חיזוק לוחות בטון, 1 צלחת מסופק עם אחד או יותר הצלחות הכלולות ו קבוע בניצב מסת הבטון לגדר.
הכל מותאם כך הצלחות הן מול צלחות המתאימים הכלולים מסת בטון קבוע למערכת מוט של צלחת 2 מסודרים במאונך ל 1.
הכל מותאם כך הצלחות הן מול צלחות המתאימים הכלולים מסת בטון קבוע למערכת מוט של צלחת 2 מסודרים במאונך ל 1.
מצורף משמעות בין שתי צלחות מוחזקות על ידי ברגים. להוסיף פריט בעל תכונות אלסטיות להיפטר בין שני לוחות מנוגדים.

יאור השוואתי של מכשיר השימוש בפנל UNION מבנית P200801099, עם מערכות אחרות משמשת UNION עכשיו בשוק. באיור צפינו שני לוחות מבניים, אחד מהם אנכיים, בקבוצה של הבנייה יכול להיות קיר המתחם או קיר מחיצה, ולוח 2 במצב מאוזן על כל הבניין הוא הרצפה, התקרה, הרצפה או או.

קו מקווקו מייצג את קו הסיום של הסריג, רצפה צפה, תקרה תלויה או צינור אוורור, אשר מסתיר את התקני חומרה ב מבני לצריבה לוח טאפאס משותפת כדי להקל על הבדיקות בעתיד.

L תיקון והידוק הברגים ייעשה על ידי מפתח מומנט מכויל כוח מתאים נטען המבניים של הבניין, כמו אלמנט אלסטומרי בין מול הצלחות של הקובץ המצורף יהיה החומר המתאים כדי החיובים הללו, למשל קעור בצורת פלדה לחץ (כמה צלצולים), או טבעת אבץ בעובי המתאים כזה של דחיסה עדיין לתמוך עומסים מבניים, מה שמאפשר גמישות מסוימת.

לאחר חיבור של לוחות מבניים, הברגים סגורים עם מערכת חותם להבטיח הן מניפולציה לא, כמו אימות קל של corruptibility של מומנט. כך אישור האדריכל לא חובה אי אפשר להתפשר.

L משיכות בצומת של לוחות מבניים המוצעות על ידי המערכת הזו מן הבנייה הנוכחית, כמו הלחמה ונראה ברור מההתחלה ההתיישבות של הבניין להימנע הסדקים האופייניים מעצבנים במבנים טרומיים.

הבניין נבנה עם מערכת הבניין הזה תמיד יהיה בניין בלי להרוס כל חלק, רק להחליף את קירות המבנה ולבצע עבודות גמר קטנים בפנים.

האלסטיות של החיבור של לוחות מבניים P20081099, שהוא גם פיזור מעולה של המון, ייתן את הבניין עמידות מצוינת תאונות ואסונות טבע כגון רעידות אדמה, הוריקנים וכו '...


Francisco López