سیستم ها برای پیوستن به دال بتنی در ساختمان های پیش ساخته
زلزله امن ساخت و ساز و آب و هوایی شدید
به طور گسترده ای شناخته شده است طیف گسترده ای از تجسم از طراحی مدولار پیش ساخته است.

این نوع ساخت و ساز در حال حاضر در هر دو ساخت و ساز مجتمع، مسکونی از قبیل خانه های شهر و بلوک های آپارتمانی، که در ساخت و ساز خدمات عمومی در نظر گرفته شده، از جمله در مدارس، ادارات و ساختمان های مورد استفاده گسترده صنعتی در میان بسیاری دیگر.
اساسا، این نوع ساخت و ساز های مدولار در صفحه اتصال متعامد بر اساس تعریف دیوار، کف، سقف، و غیره تقویت شده با صفحات بتنی در اصل به شکل مستطیل و با کامپوزیت تقویت شده توسط دو سیستم معمولا میله فولادی به موازات هر کدام علاوه بر چیده شده، هر صفحه بتن مسلح و با یک حلقه متشکل از فولاد مشخصات زیر ارائه می که دریافت می محیط می شود.
در تجسم ساختمان های پیش ساخته، مشترک بین دال بتنی برای تحقق سازه های جوشکاری، می دهد که ساختار محدودیت قابل توجه به در صفحات موقعیت تشکیل شد.
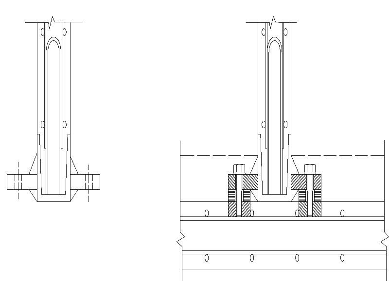
در سیستم اتحادیه GEOLIFE صفحات بتن تقویت شده، یک بشقاب است با یک یا چند بشقاب و در عمود بر توده بتن به حصار شامل ثابت ارائه شده است.
همه اقتباس شده است به طوری که از صفحات مقابل به صفحات مربوطه را در توده بتن و ثابت به سیستم میله عمود بر یک صفحه دوم به اول چیده شده است.
همه اقتباس شده است به طوری که از صفحات مقابل به صفحات مربوطه را در توده بتن و ثابت به سیستم میله عمود بر یک صفحه دوم به اول چیده شده است.
پیوست به معنی بین دو صفحه توسط پیچ برگزار شد. اضافه کردن یک آیتم با خواص الاستیک بین دو بشقاب مخالف دفع شده است.
< شرح مقایسه این دستگاه با استفاده از پانل اتحادیه سازه P200801099، با سیستم های دیگر استفاده می شود اتحادیه در حال حاضر در بازار.
در تصویر مشاهده دو پانل های ساختاری، یکی از آنها، عمودی در مجموعه ای از ساخت و ساز ممکن است یک دیوار محوطه و یا یک دیوار پارتیشن و پانل دوم را در حالت افقی در کل ساختمان کف، سقف یا کف یا.

خط نقطه چین نشان دهنده خط پایان یک شبکه، یک طبقه شناور، سقف به حالت تعلیق، و یا لوله تهویه، که دستگاه های سخت افزاری در ساختاری پانل ضبط مشترک برای تسهیل بازرسی های آینده پنهان است.

تعمیر و سفت کردن پیچ ها خواهد شد توسط آچار گشتاور کالیبره شده به یک قدرت مناسب برای بارهای ساختاری ساختمان ساخته شده، فقط به عنوان عنصر الاستومری بین مواجهه با صفحات دلبستگی باید از مواد مناسب به این اتهامات، به عنوان مثال مقعر شکل فولاد فشرده (چندین حلقه)، و یا یک حلقه روی ضخامت مناسب چنین است که فشرده سازی حمایت از بارهای سازه، اجازه می دهد کشش خاص.

هنگامی که اتصال از پانل های ساختمانی، پیچ ها با سیستم مهر و موم برای تضمین هر دو دستکاری غیر مهر و موم شده به عنوان تأیید آسان از فساد گشتاور. به طوری که صدور گواهینامه معمار اختیاری را نمی توان به خطر بیافتد.

تورق در محل اتصال از پانل های ساختاری که توسط این سیستم از ساخت و ساز ارائه شده، مانند لحیم کاری و به نظر می رسد از همان ابتدا حل و فصل از ساختمان اجتناب از ترک آزار دهنده معمولی در ساختمان های پیش ساخته.

ساختمان ساخته شده با این سیستم ساختمانی همیشه خواهد بود ساختمان چه کتابی بدون خراب کردن هر بخش، فقط دیواره های ساختاری و جایگزین انجام جزئی در پایان با این نسخهها کار در داخل.

کشش از دلبستگی از پانل های ساختاری P20081099، که همچنین پراکندگی بسیار عالی از بارهای، ساختمان مقاومت عالی در برابر حوادث و بلایای طبیعی مانند زلزله، طوفان، و غیره ...



Francisco López